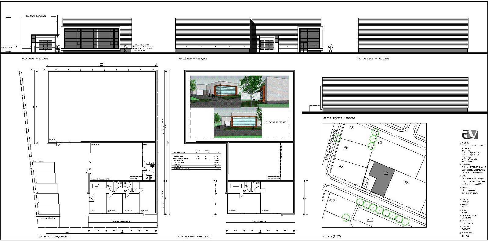
kantoor en bedrijfsruimte Grave
Adres
Generaal de Bons Bedrijventerrein
Plaats
Grave
Opdrachtgever
ANL Vastgoed B.V.
Bruto vloeroppervlak
900 m2
Start ontwerp
2008
Oplevering
2009
Type opdracht
ontwerp t/m bouwvergunning
Link
www.verhoevenbouw.nl
Generaal de Bons Bedrijventerrein
Plaats
Grave
Opdrachtgever
ANL Vastgoed B.V.
Bruto vloeroppervlak
900 m2
Start ontwerp
2008
Oplevering
2009
Type opdracht
ontwerp t/m bouwvergunning
Link
www.verhoevenbouw.nl
Terug naar het overzicht

