Elemans & Vedder
architectuur en bouwtechniek BNA
E & V
"Wie zijn wij"
Projecten
"Neem een kijkje in onze portfolio"
Nieuws
"De laatste nieuwtjes"
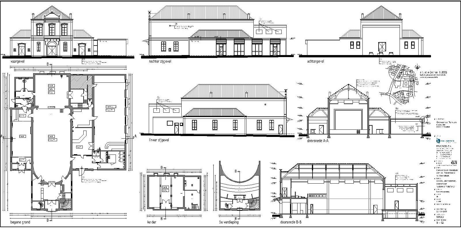
Concertzaal Renkum
Plaats
Renkum
Opdrachtgever
FM Advies
Type opdracht
tekenwerk tbv bestek
Link
www.fmadvies.eu
Terug naar het overzicht
Overige